
聯系我們
INA TSWWZ32

- 型號:
- TSWWZ32
- 品牌:
- INA
- 系列:
- TSWWZ
- 起訂量:
- ≥ 1套
- 物流:
- 全國配送

- 電話:

恩梯必專業銷售INA TSWWZ32,能為客戶提供各種技術服務,軸承選型及型號替代等解決方案,需要TSWWZ32最新規格、圖紙、報價等資料可聯系我司銷售部!
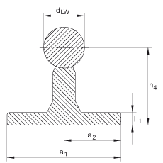
- 尺寸
- dLW
- 50.8
- mm
- h4
- 82.55
- mm
- 公差: +/-0,002 對于軸的公稱直徑,夾緊時測量。
- a1
- 95.25
- mm
- L
- 1219.2
- mm
- 最大導軌長度 L
- a2
- 47.625
- mm
- 公差 +/- 0,002 英制
- h1
- 12.7
- mm
- 重量
- m
- 4.8
- lbs/ft
- 導軌的質量
相關型號推薦:
23960-B-K-MB+AH3960G
23964-K-MB+AH3964G
23972-K-MB+AH3972G
23976-K-MB+AH3976G
23980-B-K-MB+AH3980G
23984-K-MB+AH3984G
23988-K-MB+AH3988
23992-B-K-MB+AH3992
23996-B-K-MB+AH3996
239/500-K-MB+AH39/500
239/530-K-MB+AH39/530
239/560-B-K-MB+AH39/560
239/600-B-K-MB+AH39/600
239/630-B-K-MB+AH39/630
239/670-B-K-MB+AH39/670
熱門型號排行榜: FAG HM30/670 FAG HM30/710 FAG HM30/750 FAG HM30/800 FAG HM30/850 FAG HM30/900 FAG HM30/950 FAG HM30/1000 FAG HM30/1060 FAG HM30/1120 FAG HM30/1180 FAG HM30/1250
熱門型號排行榜: FAG HM30/670 FAG HM30/710 FAG HM30/750 FAG HM30/800 FAG HM30/850 FAG HM30/900 FAG HM30/950 FAG HM30/1000 FAG HM30/1060 FAG HM30/1120 FAG HM30/1180 FAG HM30/1250
FAG軸承型號搜索
FAG-INA軸承產品中心
產品中心
產品搜索
類別目錄
四川恩梯必有限公司 版權所有



